Designing Water with Intention
Public Health Engineering at the Heart of a Home
When we speak about good design, we often talk about the seen — the textures, proportions, materials, and light. But great design also lives in the systems we don’t see. In the quiet flow of water through concealed pipelines, the seamless disposal of waste, the invisible efficiencies that shape how we live without ever asking for attention.
This is a story of one such system.
A recently completed 7,200 sq. ft private residence in Ranchi gave us the opportunity to go deep into the heart of Public Health Engineering (PHE) — to reimagine water not just as a utility, but as an experience that embodies intention, reliability, and long-term foresight.
The Brief
The client had a clear vision: a home that felt effortless to live in and easy to maintain, where systems worked without drama, and where the plumbing quietly served the life around it. Our scope covered comprehensive PHE design — from water supply and drainage to sewage and pressure systems.
This wasn’t just about plumbing. It was about designing flow — intelligently, and invisibly.
Designing the Unseen
Water Supply
We designed a centralized borewell-based supply system with water being pumped directly to an overhead tank of 16,000 litres. From there, the water flows through a dedicated filtration system equipped with a softening unit — improving water quality and extending the life of plumbing fixtures and appliances.
A central heat pump was installed to provide consistent hot water across all bathrooms — a future-forward decision that eliminates the need for individual geysers and simplifies maintenance. The overhead tank is compartmentalized into zones for domestic use, flushing, and a reserve for future firefighting — creating operational efficiency while allowing scalability.
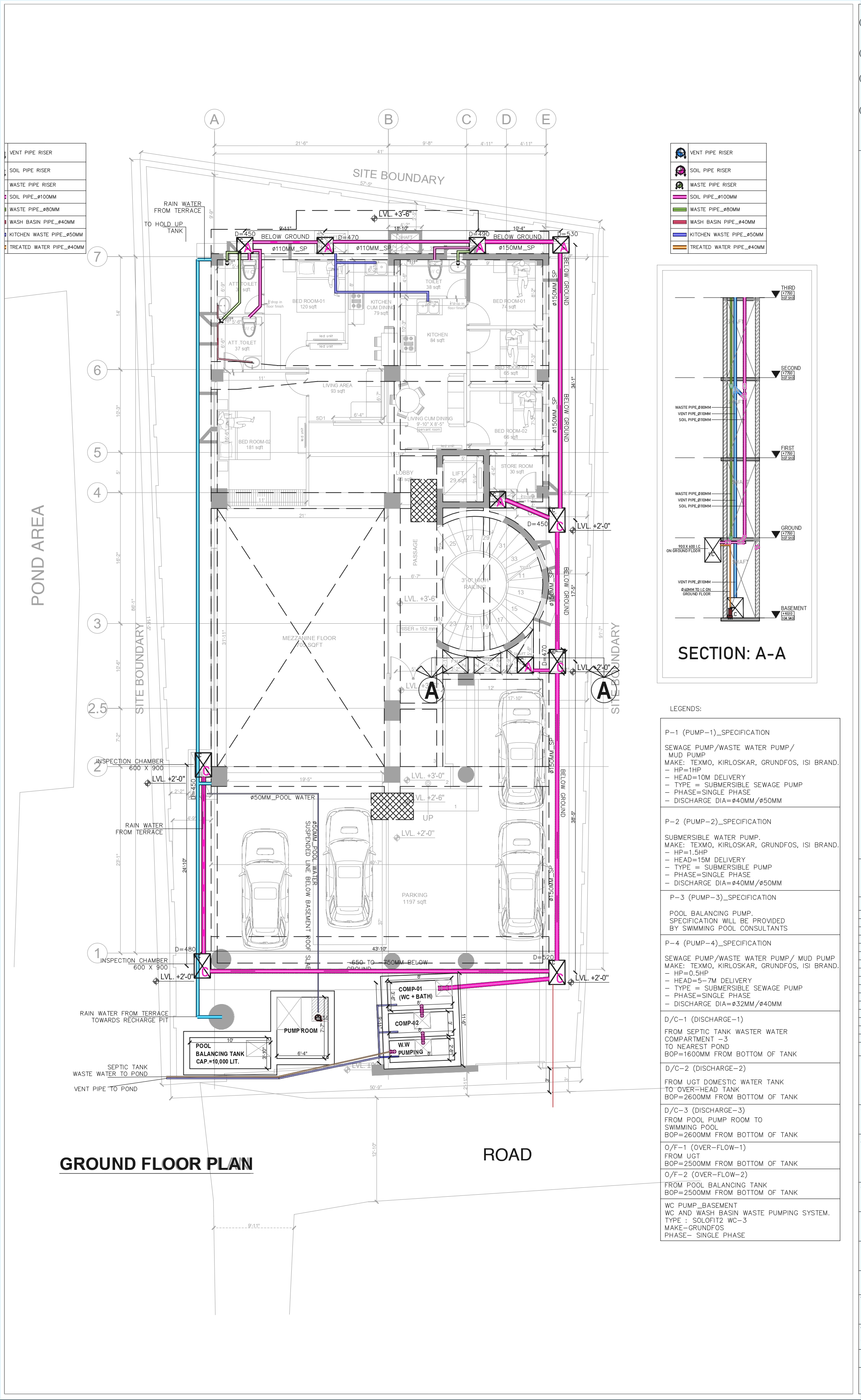
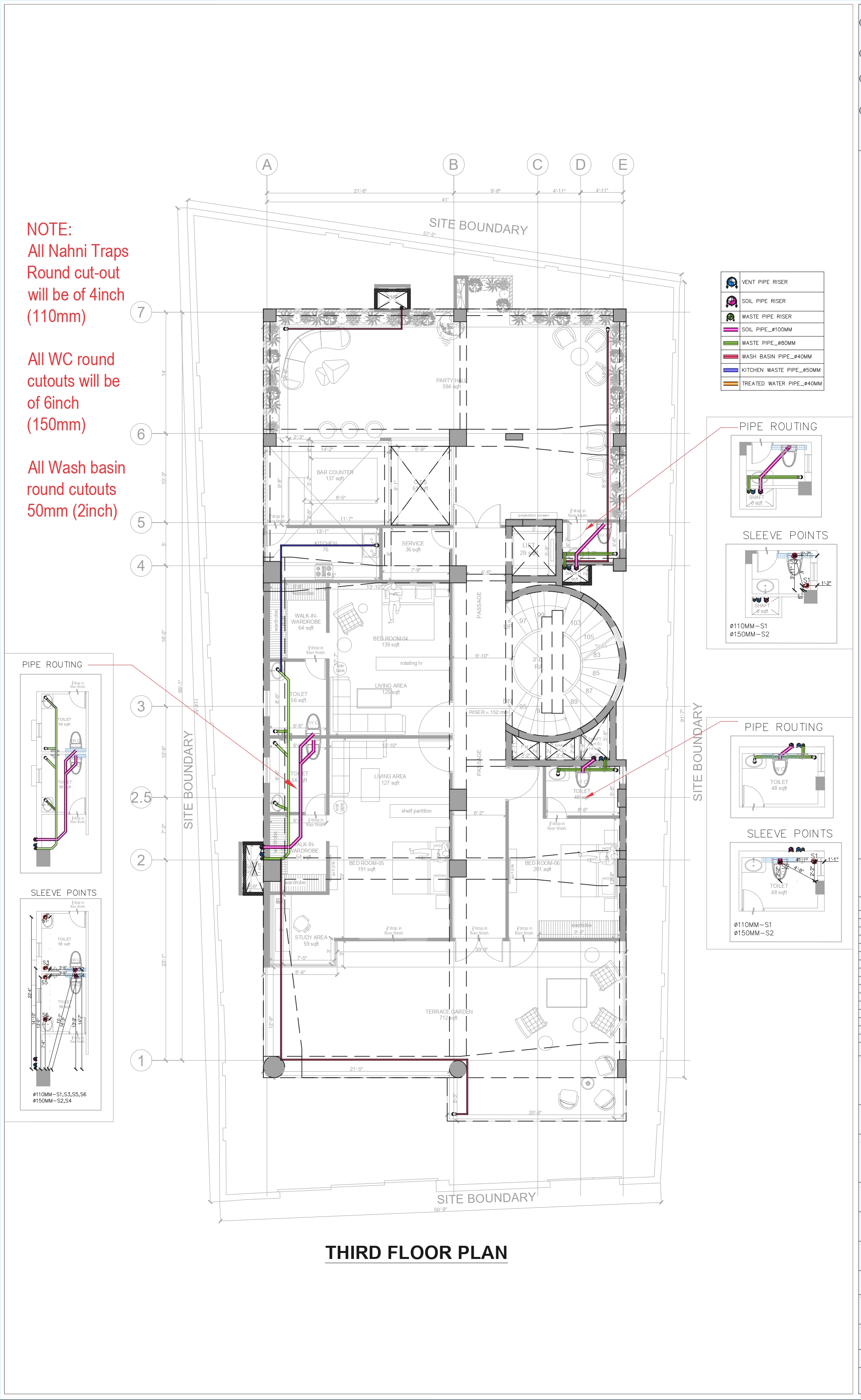
Piping Strategy
The internal system used CPVC; external, HDPE — chosen for durability and maintenance efficiency. All bathrooms and kitchens were carefully mapped to ensure the shortest, most efficient route to inspection chambers, with vertical shafts providing access at critical junctions. Every stack was ventilated. Every access point accounted for.
Heated Pool Infrastructure
An additional layer of complexity was introduced with the design of an in-house heated pool on the first floor. To support this:
- We constructed a dedicated underground pool balancing tank, which helps regulate overflow and maintain water levels.
- A filter room was designed to house the pool filtration system and heat pump, ensuring the pool remains hygienic, temperature-controlled, and easy to maintain.
This compact, efficient mechanical layout ensures that the recreational utility of the pool doesn’t compromise the performance or integrity of the building’s core water infrastructure.
Drainage & Wastewater
A full dual-stack system was implemented — isolating soil lines from waste lines for hygienic and maintenance reasons. Floor traps were self-cleaning, toilets ventilated, and the kitchen included a grease trap to intercept fats and solids.
A unique challenge was designing drainage for the basement toilets and kitchen, as the nearest inspection chambers were located at ground level — above the basement floor level. To solve this:
- A Sololift2 pump was installed for the basement toilet to lift soil waste.
- A collection pit was created for kitchen and bathroom greywater, with a dedicated pump to transfer the discharge up to the ground-level inspection chamber.
Sewage Management
Due to site constraints, a traditional STP was not feasible. Instead, we opted for a meticulously designed septic tank with:
- Chamfered corners to prevent stagnation
- A sloped base to ensure efficient sludge flow
- Waterproofed walls to prevent groundwater contamination
- Precisely calculated connection levels between chambers
- Proper ventilation to avoid pressure build-up and odors
It may not be a STP, but it’s a system designed with care — simple, efficient, and perfectly suited to its context.
Rainwater Strategy
Surface runoff was managed through a system of covered stormwater drains leading to percolation pits. Overflow was directed into the landscape zone, ensuring the site holds water during the monsoon instead of giving it away.
The Outcome
Today, the house runs quietly. There is no water hammer, no gurgling drains, no standing water after a storm. Toilets in the basement flush without a second thought. Hot water is available throughout. And not once has the system had to be opened up post-handover.
That’s what good PHE design does — it disappears.
What We Learned
Good design is invisible, but great design solves problems before they appear. PHE isn't just about fittings and flow rates — it's about thinking ahead, making room for ease, and understanding how people live, not just how buildings work.
Ready to Elevate Your Building’s Backbone?
Whether you're planning a new development or optimizing an existing one, our expert MEP design team ensures your project runs with seamless efficiency, safety, and long-term reliability.
👉 Partner with AssistArchitect for end-to-end MEP solutions tailored to your project’s unique needs.
📩 Get in touch today — let’s build the unseen systems that power your spaces.
©2024 Sustain·ability. All rights reserved. Privacy Policy
